Altijd al ruim willen wonen in de directe nabijheid van het centrum van Sittard? Dit voormalig kantoorpand biedt deze kans. Met een woonoppervlakte van ca. 185m2 zijn de mogelijkheden van deze woning legio te noemen. Maak vrijblijvend een afspraak om het zelf ter plekke te vervaren.
INDELING
Kelder
onder de hal en deels onder het kantoor gelegen kelder welke is opgedeeld in 3 ruimten.
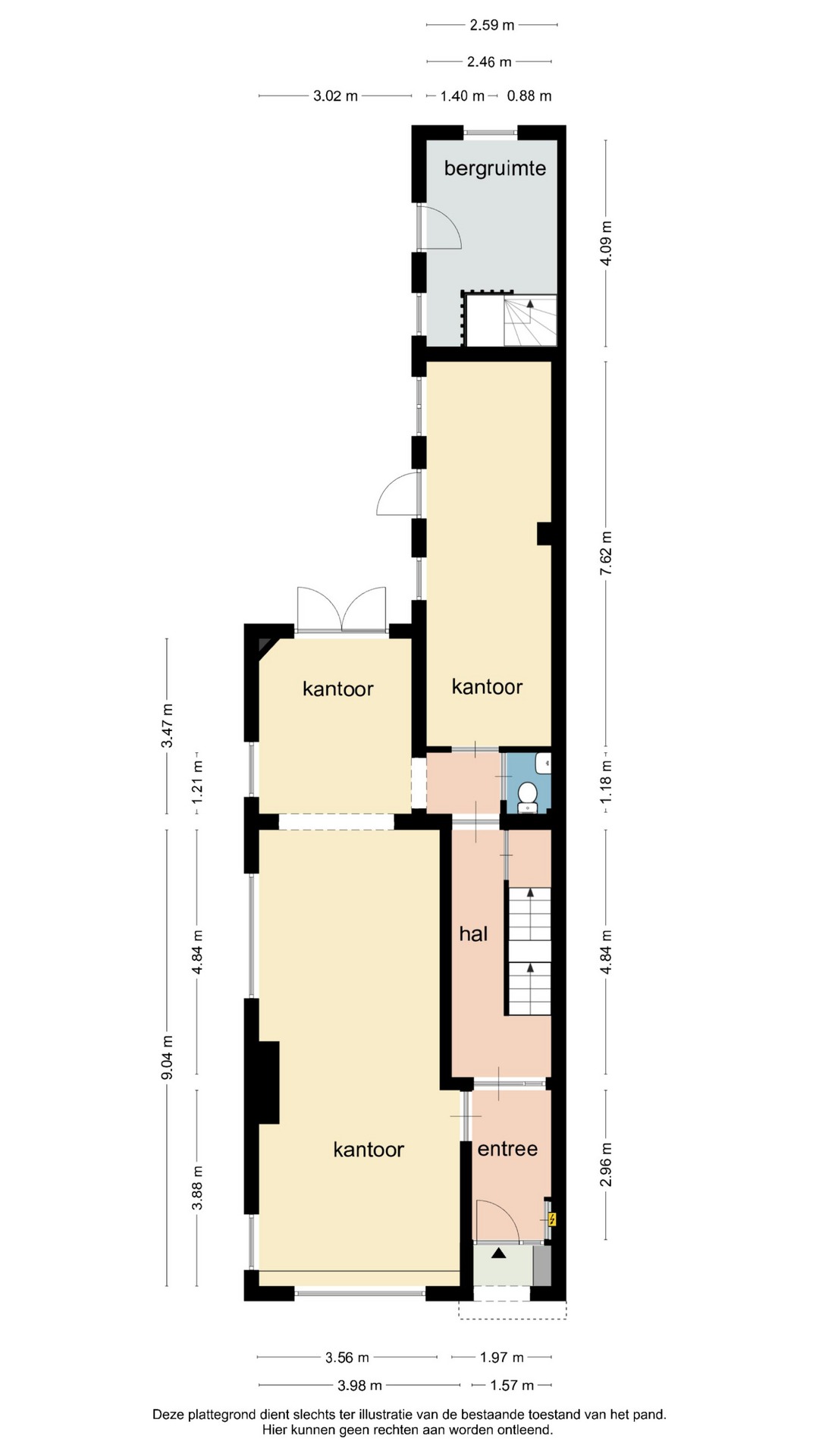
Begane grond
de hal/entree met meterkast (digitale meter, 5 groepen en 2x aardlekschakelaar) biedt toegang tot:
– de kelder
– het toilet
– 2 kantoorruimten
De toiletruimte is in haar geheel betegeld en ingericht met een staand closet en een fonteintje.
De eerste kantoorruimte staat door openslaande tuindeuren in contact met het achtergelegen terrein. Deze ruimte kan prima ingericht worden als woonkamer. De achtergelegen kantoorruimte kan ingericht worden als keuken.
De gehele begane grond is afgewerkt met vloerbedekking.
Eerste verdieping
de overloop biedt toegang tot:
– dakterras
– het toilet
– een keuken
– 2 kantoorruimten
De toiletruimte is net zolas op de begane grond in haar geheel betegeld en ingericht met een staand closet en een fonteintje.
De achtergelegen keuken is ingericht met een eenvoudig keukenblok en de Cv-installatie staat in deze ruimte opgesteld. Deze ruimte kan prima ingedeeld worden als badkamer waardoor de beide kantoorruimten kunnen fungeren als slaapkamer.
De gehele eerste verdieping is afgewerkt met vloerbedekking.
Zolder
de zolder is middels een vaste trap bereikbaar. De overloop biedt toegang tot:
– 2 kantoorruimten
Net zoals op de eerste verdieping kunnen deze beide ruimten ingedeeld worden als slaapkamers.
De gehele tweede verdieping is afgewerkt met vloerbedekking.
Berging
de achtergelegen berging is middels het buitenterrein bereikbaar. Ook deze ruimte is onderkelderd.
Buiten
het hele terrein is verhard en ingedeeld met 8 parkeerplaatsen. Hier zijn er 2 van aan de voorzijde gelegen en 6 aan de achterzijde. Het terrein naar de achterzijde toe is afsluitbaar.
BIJZONDERHEDEN
– het pand is gelegen op een rustige- en centrale locatie
– het pand kent veel lichtinval en een open indeling
– het pand is altijd gebruikt geworden als kantoor
– het pand is gelegen op een perceel met een oppervlakte van 507m2
– het pand is v.v. een woonoppervlakte van ca. 185m2
– het pand is voorzien van betonnen- en houten verdiepingsvloeren
– het pand is uitgerust met houten kozijnen
– het pand is uitgerust met enkele- en dubbele beglazing
– het pand is per direct te aanvaarden
– Cv-installatie, merk: Nefit, bj. 2019 (eigendom)
INTERESSE? MAAK DAN EEN AFSPRAAK MET CONTINUE ASSURANTIËN EN MAKELAARS VOOR EEN VRIJBLIJVENDE BEZICHTIGING OF EEN FINANCIEEL ADVIES OP MAAT.
– Uitdrukkelijk wordt gesteld dat een koopovereenkomst met betrekking tot deze onroerende zaak eerst dan tot stand is gekomen nadat alle partijen de koopovereenkomst hebben getekend, de zogenaamde “schriftelijkheidsvereiste” is in dezen van toepassing.
– De waarborgsom/bankgarantie bedraagt 10% van de koopsom en is een uitdrukkelijk onderdeel van de koopovereenkomst. De koper dient deze binnen 3 dagen ná het vervallen van de eventuele ontbindende voorwaarden bij de transporterende notaris te deponeren.
– Koper is gerechtigd voor zijn rekening een bouwkundige keuring te (laten) verrichten, dan wel adviseurs te raadplegen teneinde een goed inzicht te verkrijgen over de staat en het gebruik van deze onroerende zaak.
– Voor het optimaal behartigen van diens belangen adviseert Continue Assurantiën en Makelaars geïnteresseerden en kopers om een professionele aankoopmakelaar in te schakelen.
– De Meetinstructie is gebaseerd op de NEN2580. De Meetinstructie is bedoeld om een meer eenduidige manier van meten toe te passen voor het geven van een indicatie van de gebruiksoppervlakte. De Meetinstructie sluit verschillen in meetuitkomsten niet volledig uit, door bijvoorbeeld interpretatieverschillen, afrondingen of beperkingen bij het uitvoeren van de meting
